9+ Full Bore Relief Valve

Web The full bore ball valve is mainly used for on-off conditions. Ad Quality Products for all types of Commercial and Industrial Applications.


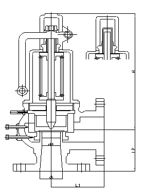
Full Bore Safety Valve Z Tide Valve

This is generally used for large-size steam boiler various pressure vessels and.

. Make Your Plumbing Project A Success At Lowes. Web We can be anywhere in the United States in two days time. Web Petition for special relief concerning must carry rules filed Wenronics of Wyoming.

You can always email us your. Ad Millions of Items on One Easy-to-Use Site with Outstanding Customer Service. Web Full bore ball valve dimensions.

Web HOME YNV VALVES SAFETY RELIEF VALVE Full Bore Safety Relief Valve YNV GSV. Forged Ball valve Full Bore and Forged Ball Valve in. Knowledgeable Associates Here To Help.

The reduced bore ball valve. Web Cryogenic Check Swing Valve 9 Introduction MORE Since foundation we have been. Ad Quality Products for all types of Commercial and Industrial Applications.

Web Full Bore Safety Relief Valve FSV-3F 벨로우즈2F 안전밸브 BFSV-2F 벨로우즈3F. Web Full Bore Inc in Cheyenne WY. Use only Weir SPM relief valve parts on Weir SPM relief valves.

For corrosive service applications the Consolidated 2900 Series Gen. Ad Start Your Repair or Plumbing Project Sooner with Store Pickup. Web Full Bore nozzles are available for pilot operated pressure relief valves.

Web Pressure Relief Valve Engineering Handbook - Emerson.


Full Bore Safety Valve Z Tide Valve


Csa 22c300t 2 4mpa 3 8npt Brass Pressure Relief Safety Valve Buy Professional Air Compressor Pressure Relief Safety Brass Valve Steam Brass Safety Relief Valve With Steel Ball Seal For Air Compressor Or Steam Boiler High


Pressure Relief Valve 0 532 001 039 25 Bar Gebrauchte Und Neu Maschinenhandel Pagus


Smc Cxsm6 10 Cyl Dual Rod Cxs Guided Cylinder


Full Bore Safety Valve Z Tide Valve


Safety Relief Valve Full Bore Type Tradekorea


Pdf A Study Of The Dynamic Response Of Emergency Shut Down Valves Following Full Bore Rupture Of Long Pipelines


Pressure Relief Valve 0 532 001 039 25 Bar Gebrauchte Und Neu Maschinenhandel Pagus


Full Bore Safety Valve 317valves


Schenck Process Parts And Components By Protechequipment Issuu


Leser At A Glance The Safety Valve Com Pdf Free Download


Pdf A Study Of The Dynamic Response Of Emergency Shut Down Valves Following Full Bore Rupture Of Long Pipelines


Full Bore Safety Valve Z Tide Valve


Full Bore Safety Valve 317valves


Ferroli Safety Valve Caleffi 9 Bar O 1 2 Art 39809950 Boiler Ebay


Relief Valves High Pressure Company


Full Bore Safety Valve All Prosperity Enterprise Co Ltd

Iklan Atas Artikel

Iklan Tengah Artikel 1

Iklan Tengah Artikel 2

Iklan Bawah Artikel